返回顶部

产品新闻

弱电工程门禁系统安装调试及故障维护

日期:2019-07-15 点击:     关键词:弱电工程门禁系统安装调试及故障维护

2019-07-15

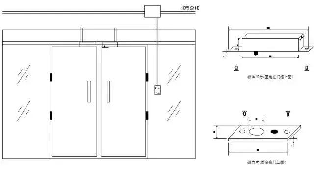
一、门禁系统安装与调试

1、电源

保证功率足够,尽量使用线性电源,门锁和控制器应分开供电。电源的安装尽可能靠近用电设备,以避免受到干扰和传输损耗。

弱电工程门禁系统安装调试及故障维护

 

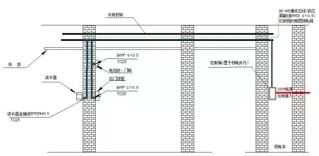
2、布线

分为电源线、通讯线、信号线,布线时注意强、弱电分开走线,两管相隔要求大于20cm左右。

信号线和通讯线:采用屏蔽五类双绞线。其中485总线必须使用双绞的一对线连接。在选购线材的时候建议采用4*0.5的四芯屏蔽线。

注意事项

  • (1)、屏蔽线千万不能用来作为0V电压(电源地)的连接线
  • (2)、每个屏蔽回路只能有一个接地端
  • (3)、当屏蔽回路中无法接地时可将屏蔽线连接到网络的另一屏蔽回路中。
  • (4)、必须将各个模块的的信号地连接在一起。
  • (5)、若线路中间有断点,需将断点用烙铁焊上并做好绝缘处理。
  • (6)、不要将网络连接线与交流电源放在一起。
  • (7)、如果网络连线超过1000米,要加中继器,中继器后可以再延长1000米。
  • (1)读卡器:不要安装在金属物体上,两台读卡器之间的距离不要少于30厘米,最好通过控制器供电。如果读卡器单独从外部供电,读卡器的电源请使用线性稳压电源(变压器),并且不能把直流的负极连接到交流的接地端。
  • (2)网络适配器:和控制器之间的连接采用手拉手的方式。
  • (3)控制器:不带隔离的控制器,建议使用同一电源。
  • (4)锁:在安装磁力锁时,一定要使锁体和继铁板能紧密的结合,否则会出现吸力不够的情况。电插锁,在安装电插锁时如果需要开插孔,注意孔径一定要够大,深度一定要够深,能让锁舌完全插入。锁舌不能完全插入,锁门后会出现锁舌不停的跳动或工作电流一直很大,锁体发烫的现象。

二、门禁系统常见故障及维修方法

1、有效卡不能开门

  • 1.检查电控锁是否正常检查电源或者更换电控锁
  • 2.锁舌与锁扣是否发生机械性卡死修复机械故障或者更换零部件
  • 3.查看控制板上的指示灯,控制板与模块间通讯是否正常排除故障
  • 4.检查读卡器与模块之间的通讯是否正常排除故障
  • 5.是否设置了信息日关闭命令通过软件调整开门时间
  • 6.操作人员是否对门禁系统进行初始化或者其他命令通过软件重新授权

2、门禁通讯不通

  • 1.检查串口是否设置错误(确定所使用的串口)
  • 2.检查门禁通讯总线是否存在短路或断路(排除通讯线短路与断路现象)
  • 3.检查RS485通讯卡通讯芯片75184损坏(更换通讯芯片75148)
  • 4.RS485通讯卡损坏(更换RS485通讯卡)
  • 5.检查网线水晶头是否做好,检查网线是否通,ping门禁控制器的地址。

3、门禁记录提取不完

4、门锁一直打开

1).操作人员将门禁器状态设置为常开,或其它原因导致控制器处于常开状态;

2).控制器故障;

处理方法:将门锁控制器状态设为正常,若故障现象仍然存在,则更换控制器。

5、IC卡无法读卡

  • 1.IC卡片在IC卡授权时已作读卡有效时间段设置(可作全天读卡有效设置)
  • 3.门禁读写天线(调整微调电容,增强读卡距离)

6、电脑跟控制器之间的通讯不稳定

  • 1.使用了不符合要求的信号线或劣质的信号线;
  • 2.信号线敷设不规范,如信号线跟电源线穿在同一条管内。
弱电工程门禁系统安装调试及故障维护

 

弱电工程门禁系统安装调试及故障维护

 

弱电工程门禁系统安装调试及故障维护

 

弱电工程门禁系统安装调试及故障维护

 

弱电工程门禁系统安装调试及故障维护

 

弱电工程门禁系统安装调试及故障维护

 

弱电工程门禁系统安装调试及故障维护

 

四、九条门禁系统锁故障总结

1、问:为什么磁力锁关门时声音极大?

  • a.检查是否有装橡胶垫片.
  • b.检查铁板端,螺丝是否太松动.
  • c.检查磁力锁 锁体 与 吸板 间距是否适当。
弱电工程门禁系统安装调试及故障维护

 

2、问:为什么磁力锁使用一段时间后,铁板吸不牢?

  • a.检查电源供器“功率和电压”1A/12V/24V输出是否减少。
  • b.检查磁体表面是否有异物(如灰尘、锈积、异物等)。

3、问:为什么磁力锁铁板常常须调整?

  • a.检查铁板是否装销钉.
  • b.检查铁板是否有装橡皮垫.
  • c.建议客户将螺丝上“螺丝固定剂.

4、问:什么铁板吸住后,感觉有微微振动,且吸力不足?

  • a.检查磁力锁主体面与铁板是否完全吸合和无异物,或将铁板调松 试一试.
  • b.检查电压,电流是否足够。

5、问:为什么磁力锁有调延时,但是没效?

答:a.磁力锁“延时调整”是以通电后开始计时,而非关门后才开始计时。

b.磁力锁的延时有0,3,6,9秒,看下设置是不是时间设置成了9秒了。

6、问:为什么磁力锁有通电,但是红色LED灯微亮且吸不住?

答:检查电压 是否足以供应电磁锁要求(应供1A电流/12V电压)

7、问:为什么磁力锁通电,吸住了但是红色LED灯一直亮,而不亮绿灯?

答:可能是磁力锁的感应元件有破坏,需要更换。

8、问:为什么使用双门磁力锁,用了一段时间吸不住?

答:双门的磁力锁耗电量比较大,检查电源供应是否充足(是否足以双门电磁力锁的需求电流和电压,或是否有线路损耗)。

9、问:磁力锁为什么搭配控制器没有动作?

答:检查控制器“输出”接点是否正确。


400-0806-056
3044AM永利
  • 网站地图